Opis apartamentu
Apartament C nr 10B – Nowoczesny apartament na piętrze z tarasem
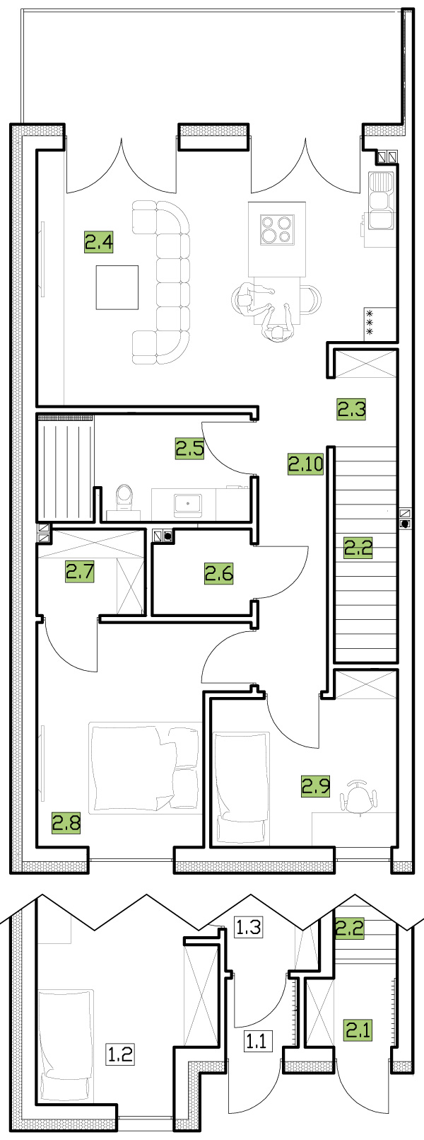
Apartament C nr 10B to przestronne, trzypokojowe mieszkanie o powierzchni użytkowej wynoszącej 74,60 m², zlokalizowane na parterze i piętrze apartamentowca w cichej i zielonej części Tarnowskich Gór – Reptach.
W skład apartamentu wchodzą: jasny salon połączony z jadalnią i aneksem kuchennym, dwie komfortowe sypialnie, łazienka, praktyczne pomieszczenie techniczne, holl, klatkę schodową oraz wiatrołap. Dodatkowym atutem jest taras oraz przypisane miejsce parkingowe.
Zestawienie powierzchni użytkowej parteru i piętra:
| 2.1. | Wiatrołap | 1,92 m2 |
| 2.2. | Klatka schodowa | 4,12 m2 |
| 2.3. | Holl | 1,94 m2 |
| 2.4. | Salon + kuchnia | 25,93 m2 |
| 2.5. | Łazienka | 7,00 m2 |
| 2.6. | Pom. techniczne | 2,54 m2 |
| 2.7. | Garderoba | 2,84 m2 |
| 2.8. | Pokój | 12,43 m2 |
| 2.9. | Pokój | 8,99 m2 |
| Razem: | parter + piętro | 74,60 m2 |
Cena apartamentu:
550 000 zł brutto
Do apartamentu w cenie przysługuje 1 miejsce parkingowe.
Każde kolejne: 25 000 zł brutto.
