O inwestycji
Zamieszkaj blisko rezerwatu przyrody Segiet i obszaru Natura 2000.
Apartamenty przy Segiecie IV to kompleks 46 nowoczesnych apartamentów o powierzchni od 58,56 m² do 115,08 m2, położony w spokojnej dzielnicy Tarnowskich Gór – Reptach. Inwestycja znajduje się tuż obok rezerwatu przyrody Segiet oraz chronionego obszaru Natura 2000, oferując wyjątkowe połączenie bliskości natury i komfortowego życia. Tarnowskie Góry to zielona oaza wśród zatłoczonych miast Śląska, wyróżniająca się spokojem i unikalnym charakterem, którego próżno szukać w okolicy.
Apartamenty przy Segiecie IV zostały zaprojektowane z myślą o osobach, które cenią nowoczesne wnętrza oraz chcą odpocząć od miejskiego zgiełku, otaczając się ciszą i przyrodą. To idealne miejsce dla tych, którzy szukają harmonii między codziennym życiem a naturą.
Wybierz apartament i zobacz jego rzut:
Segment B
- Apartament B nr 1A
- Apartament B nr 1B
- Apartament B nr 2A
- Apartament B nr 2B
- Apartament B nr 3A
- Apartament B nr 3B
- Apartament B nr 4A
- Apartament B nr 4B
- Apartament B nr 5A
- Apartament B nr 5B
- Apartament B nr 6A
- Apartament B nr 6B
Segment C
- Apartament C nr 7A
- Apartament C nr 7B
- Apartament C nr 8A
- Apartament C nr 8B
- Apartament C nr 9A
- Apartament C nr 9B
- Apartament C nr 10A
- Apartament C nr 10B
Segment D
- Apartament D nr 11A
- Apartament D nr 11B
- Apartament D nr 13A
- Apartament D nr 13B
- Apartament D nr 15A
- Apartament D nr 15B
- Apartament D nr 17A
- Apartament D nr 17B
- Apartament D nr 19A
- Apartament D nr 19B
- Apartament D nr 21A
- Apartament D nr 21B
Segment E









Opis apartamentu
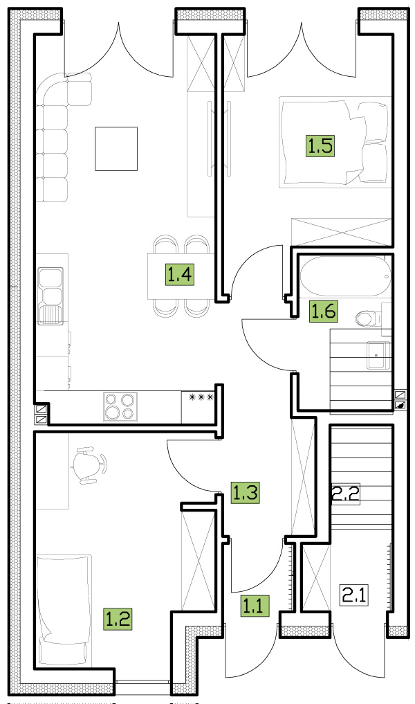
Apartament B nr 1A - Nowoczesny apartament z ogródkiem
Apartament B nr 1A to trzypokojowe mieszkanie o powierzchni użytkowej wynoszącej 60,21 m², zlokalizowane na parterze apartamentowca w cichej i zielonej części Tarnowskich Gór – Reptach.
W skład apartamentu wchodzą: jasny salon połączony z jadalnią i aneksem kuchennym, dwie komfortowe sypialnie, łazienka, praktyczne pomieszczenie techniczne, przedpokój oraz wiatrołap. Dodatkowym atutem jest prywatny ogródek, do którego prowadzi wyjście bezpośrednio z salonu, oraz przypisane miejsce parkingowe.
Zestawienie powierzchni użytkowej:
| 1.1. | Wiatrołap | 4,12 m2 |
| 1.2. | Pokój | 8,88 m2 |
| 1.3. | Korytarz | 2,48 m2 |
| 1.4. | Łazienka | 4,48 m2 |
| 1.5. | Pom. techniczne | 3,35 m2 |
| 1.6. | Pokój | 11,91 m2 |
| 1.7. | Salon + kuchnia | 24,99 m2 |
| Razem: | 60,21m2 |
Cena apartamentu:
Rezerwacja
Do apartamentu w cenie przysługuje 1 miejsce parkingowe.
Każde kolejne: 25 000 zł brutto.
Opis apartamentu
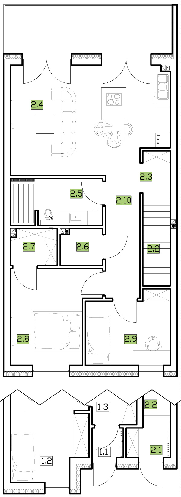
Apartament B nr 1B - Nowoczesny apartament na piętrze z tarasem
Apartament B nr 1B to przestronne, trzypokojowe mieszkanie o powierzchni użytkowej wynoszącej 69,15 m², zlokalizowane na parterze i piętrze apartamentowca w cichej i zielonej części Tarnowskich Gór – Reptach.
W skład apartamentu wchodzą: jasny salon połączony z jadalnią i aneksem kuchennym, dwie komfortowe sypialnie, łazienka, praktyczne pomieszczenie techniczne, holl, klatkę schodową oraz wiatrołap. Dodatkowym atutem jest taras oraz przypisane miejsce parkingowe.
Zestawienie powierzchni użytkowej parteru i piętra:
| 2.1. | Wiatrołap | 3,84 m2 |
| 2.2. | Klatka schodowa | 2,80 m2 |
| 2.3. | Holl | 4,28 m2 |
| 2.4. | Pom. techniczne | 2,63 m2 |
| 2.5. | Pokój | 12,50 m2 |
| 2.6. | Pokój | 12,35 m2 |
| 2.7. | Łazienka | 4,63 m2 |
| 2.8. | Korytarz | 4,78 m2 |
| 2.9. | Salon + kuchnia | 27,98 m2 |
| Razem: | parter + piętro | 69,15 m2 |
Cena apartamentu:
Rezerwacja
Do apartamentu w cenie przysługuje 1 miejsce parkingowe.
Każde kolejne: 25 000 zł brutto.
Opis apartamentu
Apartament B nr 2A - Nowoczesny apartament z ogródkiem
Apartament B nr 2A to trzypokojowe mieszkanie o powierzchni użytkowej wynoszącej 61,64 m², zlokalizowane na parterze apartamentowca w cichej i zielonej części Tarnowskich Gór – Reptach.
W skład apartamentu wchodzą: jasny salon połączony z jadalnią i aneksem kuchennym, dwie komfortowe sypialnie, łazienka, praktyczne pomieszczenie techniczne, przedpokój oraz wiatrołap. Dodatkowym atutem jest prywatny ogródek, do którego prowadzi wyjście bezpośrednio z salonu, oraz przypisane miejsce parkingowe.
Zestawienie powierzchni użytkowej:
| 1.1. | Wiatrołap | 4,12 m2 |
| 1.2. | Pokój | 8,88 m2 |
| 1.3. | Korytarz | 2,48 m2 |
| 1.4. | Łazienka | 4,85 m2 |
| 1.5. | Pom. techniczne | 3,59 m2 |
| 1.6. | Pokój | 12,73 m2 |
| 1.7. | Salon + kuchnia | 24,99 m2 |
| Razem: | 61,64 m2 |
Cena apartamentu:
450 000 zł brutto
Do apartamentu w cenie przysługuje 1 miejsce parkingowe.
Każde kolejne: 25 000 zł brutto.
Opis apartamentu
Apartament B nr 2B - Nowoczesny apartament na piętrze z tarasem
Apartament B nr 2B to przestronne, trzypokojowe mieszkanie o powierzchni użytkowej wynoszącej 78,48 m², zlokalizowane na parterze i piętrze apartamentowca w cichej i zielonej części Tarnowskich Gór – Reptach.
W skład apartamentu wchodzą: jasny salon połączony z jadalnią i aneksem kuchennym, dwie komfortowe sypialnie, łazienka, praktyczne pomieszczenie techniczne, holl, klatkę schodową oraz wiatrołap. Dodatkowym atutem jest taras oraz przypisane miejsce parkingowe.
Zestawienie powierzchni użytkowej parteru i piętra:
| 2.1. | Wiatrołap | 4,30 m2 |
| 2.2. | Klatka schodowa | 3,00 m2 |
| 2.3. | Holl | 4,57 m2 |
| 2.4. | Pom. techniczne | 2,94 m2 |
| 2.5. | Pokój | 13,15 m2 |
| 2.6. | Pokój | 12,35 m2 |
| 2.7. | Łazienka | 4,63 m2 |
| 2.8. | Korytarz | 4,78 m2 |
| 2.9. | Salon + kuchnia | 28,76 m2 |
| Razem: | parter + piętro | 78,48 m2 |
Cena apartamentu:
550 000 zł brutto
Do apartamentu w cenie przysługuje 1 miejsce parkingowe.
Każde kolejne: 25 000 zł brutto.
Opis apartamentu
Apartament B nr 3A - Nowoczesny apartament z ogródkiem
Apartament B nr 3A to trzypokojowe mieszkanie o powierzchni użytkowej wynoszącej 61,64 m², zlokalizowane na parterze apartamentowca w cichej i zielonej części Tarnowskich Gór – Reptach.
W skład apartamentu wchodzą: jasny salon połączony z jadalnią i aneksem kuchennym, dwie komfortowe sypialnie, łazienka, praktyczne pomieszczenie techniczne, przedpokój oraz wiatrołap. Dodatkowym atutem jest prywatny ogródek, do którego prowadzi wyjście bezpośrednio z salonu, oraz przypisane miejsce parkingowe.
Zestawienie powierzchni użytkowej:
| 1.1. | Wiatrołap | 4,12 m2 |
| 1.2. | Pokój | 8,88 m2 |
| 1.3. | Korytarz | 2,48 m2 |
| 1.4. | Łazienka | 4,85 m2 |
| 1.5. | Pom. techniczne | 3,59 m2 |
| 1.6. | Pokój | 12,73 m2 |
| 1.7. | Salon + kuchnia | 24,99 m2 |
| Razem: | 61,64 m2 |
Cena apartamentu:
Rezerwacja
Do apartamentu w cenie przysługuje 1 miejsce parkingowe.
Każde kolejne: 25 000 zł brutto.
Opis apartamentu
Apartament B nr 3B - Nowoczesny apartament na piętrze z tarasem
Apartament B nr 3B to przestronne, trzypokojowe mieszkanie o powierzchni użytkowej wynoszącej 78,48 m², zlokalizowane na parterze i piętrze apartamentowca w cichej i zielonej części Tarnowskich Gór – Reptach.
W skład apartamentu wchodzą: jasny salon połączony z jadalnią i aneksem kuchennym, dwie komfortowe sypialnie, łazienka, praktyczne pomieszczenie techniczne, holl, klatkę schodową oraz wiatrołap. Dodatkowym atutem jest taras oraz przypisane miejsce parkingowe.
Zestawienie powierzchni użytkowej parteru i piętra:
| 2.1. | Wiatrołap | 4,30 m2 |
| 2.2. | Klatka schodowa | 3,00 m2 |
| 2.3. | Holl | 4,57 m2 |
| 2.4. | Pom. techniczne | 2,94 m2 |
| 2.5. | Pokój | 13,15 m2 |
| 2.6. | Pokój | 12,35 m2 |
| 2.7. | Łazienka | 4,63 m2 |
| 2.8. | Korytarz | 4,78 m2 |
| 2.9. | Salon + kuchnia | 28,76 m2 |
| Razem: | parter + piętro | 78,48 m2 |
Cena apartamentu:
550 000 zł brutto
Do apartamentu w cenie przysługuje 1 miejsce parkingowe.
Każde kolejne: 25 000 zł brutto.
Opis apartamentu
Apartament B nr 4A - Nowoczesny apartament z ogródkiem
Apartament B nr 4A to trzypokojowe mieszkanie o powierzchni użytkowej wynoszącej 61,64 m², zlokalizowane na parterze apartamentowca w cichej i zielonej części Tarnowskich Gór – Reptach.
W skład apartamentu wchodzą: jasny salon połączony z jadalnią i aneksem kuchennym, dwie komfortowe sypialnie, łazienka, praktyczne pomieszczenie techniczne, przedpokój oraz wiatrołap. Dodatkowym atutem jest prywatny ogródek, do którego prowadzi wyjście bezpośrednio z salonu, oraz przypisane miejsce parkingowe.
Zestawienie powierzchni użytkowej:
| 1.1. | Wiatrołap | 4,12 m2 |
| 1.2. | Pokój | 8,88 m2 |
| 1.3. | Korytarz | 2,48 m2 |
| 1.4. | Łazienka | 4,85 m2 |
| 1.5. | Pom. techniczne | 3,59 m2 |
| 1.6. | Pokój | 12,73 m2 |
| 1.7. | Salon + kuchnia | 24,99 m2 |
| Razem: | 61,64 m2 |
Cena apartamentu:
450 000 zł brutto
Do apartamentu w cenie przysługuje 1 miejsce parkingowe.
Każde kolejne: 25 000 zł brutto.
Opis apartamentu
Apartament B nr 4B - Nowoczesny apartament na piętrze z tarasem
Apartament B nr 4B to przestronne, trzypokojowe mieszkanie o powierzchni użytkowej wynoszącej 78,48 m², zlokalizowane na parterze i piętrze apartamentowca w cichej i zielonej części Tarnowskich Gór – Reptach.
W skład apartamentu wchodzą: jasny salon połączony z jadalnią i aneksem kuchennym, dwie komfortowe sypialnie, łazienka, praktyczne pomieszczenie techniczne, holl, klatkę schodową oraz wiatrołap. Dodatkowym atutem jest taras oraz przypisane miejsce parkingowe.
Zestawienie powierzchni użytkowej parteru i piętra:
| 2.1. | Wiatrołap | 4,30 m2 |
| 2.2. | Klatka schodowa | 3,00 m2 |
| 2.3. | Holl | 4,57 m2 |
| 2.4. | Pom. techniczne | 2,94 m2 |
| 2.5. | Pokój | 13,15 m2 |
| 2.6. | Pokój | 12,35 m2 |
| 2.7. | Łazienka | 4,63 m2 |
| 2.8. | Korytarz | 4,78 m2 |
| 2.9. | Salon + kuchnia | 28,76 m2 |
| Razem: | parter + piętro | 78,48 m2 |
Cena apartamentu:
550 000 zł brutto
Do apartamentu w cenie przysługuje 1 miejsce parkingowe.
Każde kolejne: 25 000 zł brutto.
Opis apartamentu
Apartament B nr 5A - Nowoczesny apartament z ogródkiem
Apartament B nr 5A to trzypokojowe mieszkanie o powierzchni użytkowej wynoszącej 61,64 m², zlokalizowane na parterze apartamentowca w cichej i zielonej części Tarnowskich Gór – Reptach.
W skład apartamentu wchodzą: jasny salon połączony z jadalnią i aneksem kuchennym, dwie komfortowe sypialnie, łazienka, praktyczne pomieszczenie techniczne, przedpokój oraz wiatrołap. Dodatkowym atutem jest prywatny ogródek, do którego prowadzi wyjście bezpośrednio z salonu, oraz przypisane miejsce parkingowe.
Zestawienie powierzchni użytkowej:
| 1.1. | Wiatrołap | 4,12 m2 |
| 1.2. | Pokój | 8,88 m2 |
| 1.3. | Korytarz | 2,48 m2 |
| 1.4. | Łazienka | 4,85 m2 |
| 1.5. | Pom. techniczne | 3,59 m2 |
| 1.6. | Pokój | 12,73 m2 |
| 1.7. | Salon + kuchnia | 24,99 m2 |
| Razem: | 61,64 m2 |
Cena apartamentu:
450 000 zł brutto
Do apartamentu w cenie przysługuje 1 miejsce parkingowe.
Każde kolejne: 25 000 zł brutto.
Opis apartamentu
Apartament B nr 5B - Nowoczesny apartament na piętrze z tarasem
Apartament B nr 5B to przestronne, trzypokojowe mieszkanie o powierzchni użytkowej wynoszącej 78,48 m², zlokalizowane na parterze i piętrze apartamentowca w cichej i zielonej części Tarnowskich Gór – Reptach.
W skład apartamentu wchodzą: jasny salon połączony z jadalnią i aneksem kuchennym, dwie komfortowe sypialnie, łazienka, praktyczne pomieszczenie techniczne, holl, klatkę schodową oraz wiatrołap. Dodatkowym atutem jest taras oraz przypisane miejsce parkingowe.
Zestawienie powierzchni użytkowej parteru i piętra:
| 2.1. | Wiatrołap | 4,30 m2 |
| 2.2. | Klatka schodowa | 3,00 m2 |
| 2.3. | Holl | 4,57 m2 |
| 2.4. | Pom. techniczne | 2,94 m2 |
| 2.5. | Pokój | 13,15 m2 |
| 2.6. | Pokój | 12,35 m2 |
| 2.7. | Łazienka | 4,63 m2 |
| 2.8. | Korytarz | 4,78 m2 |
| 2.9. | Salon + kuchnia | 28,76 m2 |
| Razem: | parter + piętro | 78,48 m2 |
Cena apartamentu:
550 000 zł brutto
Do apartamentu w cenie przysługuje 1 miejsce parkingowe.
Każde kolejne: 25 000 zł brutto.
Opis apartamentu
Apartament B nr 6A - Nowoczesny apartament z ogródkiem
Apartament B nr 6A to trzypokojowe mieszkanie o powierzchni użytkowej wynoszącej 60,21 m², zlokalizowane na parterze apartamentowca w cichej i zielonej części Tarnowskich Gór – Reptach.
W skład apartamentu wchodzą: jasny salon połączony z jadalnią i aneksem kuchennym, dwie komfortowe sypialnie, łazienka, praktyczne pomieszczenie techniczne, przedpokój oraz wiatrołap. Dodatkowym atutem jest prywatny ogródek, do którego prowadzi wyjście bezpośrednio z salonu, oraz przypisane miejsce parkingowe.
Zestawienie powierzchni użytkowej:
| 1.1. | Wiatrołap | 4,12 m2 |
| 1.2. | Pokój | 8,88 m2 |
| 1.3. | Korytarz | 2,48 m2 |
| 1.4. | Łazienka | 4,48 m2 |
| 1.5. | Pom. techniczne | 3,35 m2 |
| 1.6. | Pokój | 11,91 m2 |
| 1.7. | Salon + kuchnia | 24,99 m2 |
| Razem: | 60,21 m2 |
Cena apartamentu:
Rezerwacja
Do apartamentu w cenie przysługuje 1 miejsce parkingowe.
Każde kolejne: 25 000 zł brutto.
Opis apartamentu
Apartament B nr 6B - Nowoczesny apartament na piętrze z tarasem
Apartament B nr 6B to przestronne, trzypokojowe mieszkanie o powierzchni użytkowej wynoszącej 75,79 m², zlokalizowane na parterze i piętrze apartamentowca w cichej i zielonej części Tarnowskich Gór – Reptach.
W skład apartamentu wchodzą: jasny salon połączony z jadalnią i aneksem kuchennym, dwie komfortowe sypialnie, łazienka, praktyczne pomieszczenie techniczne, holl, klatkę schodową oraz wiatrołap. Dodatkowym atutem jest taras oraz przypisane miejsce parkingowe.
Zestawienie powierzchni użytkowej parteru i piętra:
| 2.1. | Wiatrołap | 3,84 m2 |
| 2.2. | Klatka schodowa | 2,80 m2 |
| 2.3. | Holl | 4,28 m2 |
| 2.4. | Pom. techniczne | 2,63 m2 |
| 2.5. | Pokój | 12,50 m2 |
| 2.6. | Pokój | 12,35 m2 |
| 2.7. | Łazienka | 4,63 m2 |
| 2.8. | Korytarz | 4,78 m2 |
| 2.9. | Salon + kuchnia | 27,98 m2 |
| Razem: | parter + piętro | 75,79 m2 |
Cena apartamentu:
Rezerwacja
Do apartamentu w cenie przysługuje 1 miejsce parkingowe.
Każde kolejne: 25 000 zł brutto.
Opis apartamentu
Apartament C nr 10A - Nowoczesny apartament z ogródkiem
Apartament C nr 10A to trzypokojowe mieszkanie o powierzchni użytkowej wynoszącej 58,56 m², zlokalizowane na parterze apartamentowca w cichej i zielonej części Tarnowskich Gór – Reptach.
W skład apartamentu wchodzą: jasny salon połączony z jadalnią i aneksem kuchennym, dwie komfortowe sypialnie, łazienka, praktyczne pomieszczenie techniczne, przedpokój oraz wiatrołap. Dodatkowym atutem jest prywatny ogródek, do którego prowadzi wyjście bezpośrednio z salonu, oraz przypisane miejsce parkingowe.
Zestawienie powierzchni użytkowej:
| 1.1. | Wiatrołap | 1,57 m2 |
| 1.2. | Pokój | 12,38 m2 |
| 1.3. | Korytarz | 6,14 m2 |
| 1.4. | Salon + kuchnia | 21,72 m2 |
| 1.5. | Pokój | 12,15 m2 |
| 1.6. | Łazienka | 4,60 m2 |
| Razem: | 58,56 m2 |
Cena apartamentu:
Rezerwacja
Do apartamentu w cenie przysługuje 1 miejsce parkingowe.
Każde kolejne: 25 000 zł brutto.
Opis apartamentu
Apartament C nr 10B - Nowoczesny apartament na piętrze z tarasem
Apartament C nr 10B to przestronne, trzypokojowe mieszkanie o powierzchni użytkowej wynoszącej 74,60 m², zlokalizowane na parterze i piętrze apartamentowca w cichej i zielonej części Tarnowskich Gór – Reptach.
W skład apartamentu wchodzą: jasny salon połączony z jadalnią i aneksem kuchennym, dwie komfortowe sypialnie, łazienka, praktyczne pomieszczenie techniczne, holl, klatkę schodową oraz wiatrołap. Dodatkowym atutem jest taras oraz przypisane miejsce parkingowe.
Zestawienie powierzchni użytkowej parteru i piętra:
| 2.1. | Wiatrołap | 1,92 m2 |
| 2.2. | Klatka schodowa | 4,12 m2 |
| 2.3. | Holl | 1,94 m2 |
| 2.4. | Salon + kuchnia | 25,93 m2 |
| 2.5. | Łazienka | 7,00 m2 |
| 2.6. | Pom. techniczne | 2,54 m2 |
| 2.7. | Garderoba | 2,84 m2 |
| 2.8. | Pokój | 12,43 m2 |
| 2.9. | Pokój | 8,99 m2 |
| Razem: | parter + piętro | 74,60 m2 |
Cena apartamentu:
550 000 zł brutto
Do apartamentu w cenie przysługuje 1 miejsce parkingowe.
Każde kolejne: 25 000 zł brutto.
Opis apartamentu
Apartament C nr 7A - Nowoczesny apartament z ogródkiem
Apartament C nr 7A to trzypokojowe mieszkanie o powierzchni użytkowej wynoszącej 58,56 m², zlokalizowane na parterze apartamentowca w cichej i zielonej części Tarnowskich Gór – Reptach.
W skład apartamentu wchodzą: jasny salon połączony z jadalnią i aneksem kuchennym, dwie komfortowe sypialnie, łazienka, praktyczne pomieszczenie techniczne, przedpokój oraz wiatrołap. Dodatkowym atutem jest prywatny ogródek, do którego prowadzi wyjście bezpośrednio z salonu, oraz przypisane miejsce parkingowe.
Zestawienie powierzchni użytkowej:
| 1.1. | Wiatrołap | 1,57 m2 |
| 1.2. | Pokój | 12,38 m2 |
| 1.3. | Korytarz | 6,14 m2 |
| 1.4. | Salon + kuchnia | 21,72 m2 |
| 1.5. | Pokój | 12,15 m2 |
| 1.6. | Łazienka | 4,60 m2 |
| Razem: | 58,56 m2 |
Cena apartamentu:
Rezerwacja
Do apartamentu w cenie przysługuje 1 miejsce parkingowe.
Każde kolejne: 25 000 zł brutto.
Opis apartamentu
Apartament C nr 7B - Nowoczesny apartament na piętrze z tarasem
Apartament C nr 7B to przestronne, trzypokojowe mieszkanie o powierzchni użytkowej wynoszącej 74,60 m², zlokalizowane na parterze i piętrze apartamentowca w cichej i zielonej części Tarnowskich Gór – Reptach.
W skład apartamentu wchodzą: jasny salon połączony z jadalnią i aneksem kuchennym, dwie komfortowe sypialnie, łazienka, praktyczne pomieszczenie techniczne, holl, klatkę schodową oraz wiatrołap. Dodatkowym atutem jest taras oraz przypisane miejsce parkingowe.
Zestawienie powierzchni użytkowej parteru i piętra:
| 2.1. | Wiatrołap | 1,92 m2 |
| 2.2. | Klatka schodowa | 4,12 m2 |
| 2.3. | Holl | 1,94 m2 |
| 2.4. | Salon + kuchnia | 25,93 m2 |
| 2.5. | Łazienka | 7,00 m2 |
| 2.6. | Pom. techniczne | 2,54 m2 |
| 2.7. | Garderoba | 2,84 m2 |
| 2.8. | Pokój | 12,43 m2 |
| 2.9. | Pokój | 8,99 m2 |
| Razem: | parter + piętro | 74,60 m2 |
Cena apartamentu:
550 000 zł brutto
Do apartamentu w cenie przysługuje 1 miejsce parkingowe.
Każde kolejne: 25 000 zł brutto.
Opis apartamentu
Apartament C nr 8A - Nowoczesny apartament z ogródkiem
Apartament C nr 8A to trzypokojowe mieszkanie o powierzchni użytkowej wynoszącej 60,05 m², zlokalizowane na parterze apartamentowca w cichej i zielonej części Tarnowskich Gór – Reptach.
W skład apartamentu wchodzą: jasny salon połączony z jadalnią i aneksem kuchennym, dwie komfortowe sypialnie, łazienka, praktyczne pomieszczenie techniczne, przedpokój oraz wiatrołap. Dodatkowym atutem jest prywatny ogródek, do którego prowadzi wyjście bezpośrednio z salonu, oraz przypisane miejsce parkingowe.
Zestawienie powierzchni użytkowej:
| 1.1. | Wiatrołap | 1,57 m2 |
| 1.2. | Pokój | 12,38 m2 |
| 1.3. | Korytarz | 6,50 m2 |
| 1.4. | Salon + kuchnia | 21,72 m2 |
| 1.5. | Pokój | 12,80 m2 |
| 1.6. | Łazienka | 5,08 m2 |
| Razem: | 60,05 m2 |
Cena apartamentu:
435 000 zł brutto
Do apartamentu w cenie przysługuje 1 miejsce parkingowe.
Każde kolejne: 25 000 zł brutto.
Opis apartamentu
Apartament C nr 8B - Nowoczesny apartament na piętrze z tarasem
Apartament C nr 8B to przestronne, trzypokojowe mieszkanie o powierzchni użytkowej wynoszącej 76,92 m², zlokalizowane na parterze i piętrze apartamentowca w cichej i zielonej części Tarnowskich Gór – Reptach.
W skład apartamentu wchodzą: jasny salon połączony z jadalnią i aneksem kuchennym, dwie komfortowe sypialnie, łazienka, praktyczne pomieszczenie techniczne, holl, klatkę schodową oraz wiatrołap. Dodatkowym atutem jest taras oraz przypisane miejsce parkingowe.
Zestawienie powierzchni użytkowej parteru i piętra:
| 2.1. | Wiatrołap | 2,13 m2 |
| 2.2. | Klatka schodowa | 4,12 m2 |
| 2.3. | Holl | 1,94 m2 |
| 2.4. | Salon + kuchnia | 26,62 m2 |
| 2.5. | Łazienka | 7,00 m2 |
| 2.6. | Pom. techniczne | 2,54 m2 |
| 2.7. | Garderoba | 2,84 m2 |
| 2.8. | Pokój | 12,43 m2 |
| 2.9. | Pokój | 9,44 m2 |
| Razem: | parter + piętro | 76,92 m2 |
Cena apartamentu:
540 000 zł brutto
Do apartamentu w cenie przysługuje 1 miejsce parkingowe.
Każde kolejne: 25 000 zł brutto.
Opis apartamentu
Apartament C nr 9A - Nowoczesny apartament z ogródkiem
Apartament C nr 9A to trzypokojowe mieszkanie o powierzchni użytkowej wynoszącej 60,05 m², zlokalizowane na parterze apartamentowca w cichej i zielonej części Tarnowskich Gór – Reptach.
W skład apartamentu wchodzą: jasny salon połączony z jadalnią i aneksem kuchennym, dwie komfortowe sypialnie, łazienka, praktyczne pomieszczenie techniczne, przedpokój oraz wiatrołap. Dodatkowym atutem jest prywatny ogródek, do którego prowadzi wyjście bezpośrednio z salonu, oraz przypisane miejsce parkingowe.
Zestawienie powierzchni użytkowej:
| 1.1. | Wiatrołap | 1,57 m2 |
| 1.2. | Pokój | 12,38 m2 |
| 1.3. | Korytarz | 6,50 m2 |
| 1.4. | Salon + kuchnia | 21,72 m2 |
| 1.5. | Pokój | 12,80 m2 |
| 1.6. | Łazienka | 5,08 m2 |
| Razem: | 60,05 m2 |
Cena apartamentu:
435 000 zł brutto
Do apartamentu w cenie przysługuje 1 miejsce parkingowe.
Każde kolejne: 25 000 zł brutto.
Opis apartamentu
Apartament C nr 9B - Nowoczesny apartament na piętrze z tarasem
Apartament C nr 9B to przestronne, trzypokojowe mieszkanie o powierzchni użytkowej wynoszącej 76,92 m², zlokalizowane na parterze i piętrze apartamentowca w cichej i zielonej części Tarnowskich Gór – Reptach.
W skład apartamentu wchodzą: jasny salon połączony z jadalnią i aneksem kuchennym, dwie komfortowe sypialnie, łazienka, praktyczne pomieszczenie techniczne, holl, klatkę schodową oraz wiatrołap. Dodatkowym atutem jest taras oraz przypisane miejsce parkingowe.
Zestawienie powierzchni użytkowej parteru i piętra:
| 2.1. | Wiatrołap | 2,13 m2 |
| 2.2. | Klatka schodowa | 4,12 m2 |
| 2.3. | Holl | 1,94 m2 |
| 2.4. | Salon + kuchnia | 26,62 m2 |
| 2.5. | Łazienka | 7,00 m2 |
| 2.6. | Pom. techniczne | 2,54 m2 |
| 2.7. | Garderoba | 2,84 m2 |
| 2.8. | Pokój | 12,43 m2 |
| 2.9. | Pokój | 9,44 m2 |
| Razem: | parter + piętro | 76,92 m2 |
Cena apartamentu:
540 000 zł brutto
Do apartamentu w cenie przysługuje 1 miejsce parkingowe.
Każde kolejne: 25 000 zł brutto.
Opis apartamentu
Apartament D nr 11A - Nowoczesny apartament z ogródkiem
Apartament D nr 11A to trzypokojowe mieszkanie o powierzchni użytkowej wynoszącej 59,18 m², zlokalizowane na parterze apartamentowca w cichej i zielonej części Tarnowskich Gór – Reptach.
W skład apartamentu wchodzą: jasny salon połączony z jadalnią i aneksem kuchennym, dwie komfortowe sypialnie, łazienka, przedpokój oraz wiatrołap. Dodatkowym atutem jest prywatny ogródek, do którego prowadzi wyjście bezpośrednio z salonu, oraz przypisane miejsce parkingowe.
Zestawienie powierzchni użytkowej:
| 1.1. | Wiatrołap | 5,02 m2 |
| 1.2. | Pokój | 9,62 m2 |
| 1.3. | WC | 2,34 m2 |
| 1.4. | Korytarz | 2,40 m2 |
| 1.5. | Salon + kuchnia | 22,51 m2 |
| 1.6. | Pokój | 10,70 m2 |
| 1.7. | Łazienka | 6,59 m2 |
| Razem: | 59,18 m2 |
Cena apartamentu:
500 000 zł brutto
Do apartamentu w cenie przysługuje 1 miejsce parkingowe.
Każde kolejne: 25 000 zł brutto.
Opis apartamentu
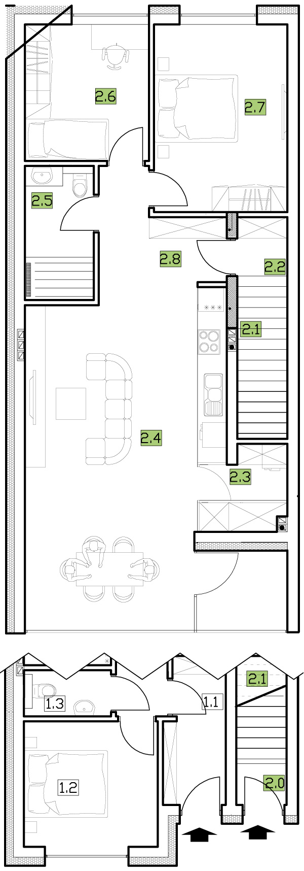
Apartament D nr 11B - Nowoczesny apartament na piętrze z tarasem
Apartament D nr 11B to trzypokojowe mieszkanie o powierzchni użytkowej wynoszącej 83,72 m², zlokalizowane na parterze i piętrze apartamentowca w cichej i zielonej części Tarnowskich Gór – Reptach.
W skład apartamentu wchodzą: jasny salon połączony z jadalnią i aneksem kuchennym, dwie komfortowe sypialnie, łazienka, przedpokój, praktyczne pomieszczenie techniczne oraz wiatrołap. Dodatkowym atutem jest taras oraz przypisane miejsce parkingowe.
Zestawienie powierzchni użytkowej:
| 2.0. | Wiatrołap | 1,31 m2 |
| 2.1. | Klatka schodowa | 9,62 m2 |
| 2.2. | Holl | 1,80 m2 |
| 2.3. | Pom. techniczne | 3,94 m2 |
| 2.4. | Salon + kuchnia | 35,79 m2 |
| 2.5. | Łazienka | 5,31 m2 |
| 2.6. | Pokój | 9,70 m2 |
| 2.7. | Pokój | 14,32 m2 |
| 2.8. | Korytarz | 6,76 m2 |
| Razem: | 83,72 m2 |
Cena apartamentu:
690 000 zł brutto
Do apartamentu w cenie przysługuje 1 miejsce parkingowe.
Każde kolejne: 25 000 zł brutto.
Opis apartamentu
Apartament D nr 13A - Nowoczesny apartament z ogródkiem
Apartament D nr 13A to trzypokojowe mieszkanie o powierzchni użytkowej wynoszącej 59,18 m², zlokalizowane na parterze apartamentowca w cichej i zielonej części Tarnowskich Gór – Reptach.
W skład apartamentu wchodzą: jasny salon połączony z jadalnią i aneksem kuchennym, dwie komfortowe sypialnie, łazienka, przedpokój oraz wiatrołap. Dodatkowym atutem jest prywatny ogródek, do którego prowadzi wyjście bezpośrednio z salonu, oraz przypisane miejsce parkingowe.
Zestawienie powierzchni użytkowej:
| 1.1. | Wiatrołap | 5,02 m2 |
| 1.2. | Pokój | 9,62 m2 |
| 1.3. | WC | 2,34 m2 |
| 1.4. | Korytarz | 2,40 m2 |
| 1.5. | Salon + kuchnia | 22,51 m2 |
| 1.6. | Pokój | 10,70 m2 |
| 1.7. | Łazienka | 6,59 m2 |
| Razem: | 59,18 m2 |
Cena apartamentu:
490 000 zł brutto
Do apartamentu w cenie przysługuje 1 miejsce parkingowe.
Każde kolejne: 25 000 zł brutto.
Opis apartamentu
Apartament D nr 13B - Nowoczesny apartament na piętrze z tarasem
Apartament D nr 13B to trzypokojowe mieszkanie o powierzchni użytkowej wynoszącej 83,72 m², zlokalizowane na parterze i piętrze apartamentowca w cichej i zielonej części Tarnowskich Gór – Reptach.
W skład apartamentu wchodzą: jasny salon połączony z jadalnią i aneksem kuchennym, dwie komfortowe sypialnie, łazienka, przedpokój, praktyczne pomieszczenie techniczne oraz wiatrołap. Dodatkowym atutem jest taras oraz przypisane miejsce parkingowe.
Zestawienie powierzchni użytkowej:
| 2.0. | Wiatrołap | 1,31 m2 |
| 2.1. | Klatka schodowa | 9,62 m2 |
| 2.2. | Holl | 1,80 m2 |
| 2.3. | Pom. techniczne | 3,94 m2 |
| 2.4. | Salon + kuchnia | 35,79 m2 |
| 2.5. | Łazienka | 5,31 m2 |
| 2.6. | Pokój | 9,70 m2 |
| 2.7. | Pokój | 14,32 m2 |
| 2.8. | Korytarz | 6,76 m2 |
| Razem: | 83,72 m2 |
Cena apartamentu:
680 000 zł brutto
Do apartamentu w cenie przysługuje 1 miejsce parkingowe.
Każde kolejne: 25 000 zł brutto.
Opis apartamentu
Apartament D nr 15A - Nowoczesny apartament z ogródkiem
Apartament D nr 15A to trzypokojowe mieszkanie o powierzchni użytkowej wynoszącej 59,18 m², zlokalizowane na parterze apartamentowca w cichej i zielonej części Tarnowskich Gór – Reptach.
W skład apartamentu wchodzą: jasny salon połączony z jadalnią i aneksem kuchennym, dwie komfortowe sypialnie, łazienka, przedpokój oraz wiatrołap. Dodatkowym atutem jest prywatny ogródek, do którego prowadzi wyjście bezpośrednio z salonu, oraz przypisane miejsce parkingowe.
Zestawienie powierzchni użytkowej:
| 1.1. | Wiatrołap | 5,02 m2 |
| 1.2. | Pokój | 9,62 m2 |
| 1.3. | WC | 2,34 m2 |
| 1.4. | Korytarz | 2,40 m2 |
| 1.5. | Salon + kuchnia | 22,51 m2 |
| 1.6. | Pokój | 10,70 m2 |
| 1.7. | Łazienka | 6,59 m2 |
| Razem: | 59,18 m2 |
Cena apartamentu:
490 000 zł brutto
Do apartamentu w cenie przysługuje 1 miejsce parkingowe.
Każde kolejne: 25 000 zł brutto.
Opis apartamentu
Apartament D nr 15B - Nowoczesny apartament na piętrze z tarasem
Apartament D nr 15B to trzypokojowe mieszkanie o powierzchni użytkowej wynoszącej 83,72 m², zlokalizowane na parterze i piętrze apartamentowca w cichej i zielonej części Tarnowskich Gór – Reptach.
W skład apartamentu wchodzą: jasny salon połączony z jadalnią i aneksem kuchennym, dwie komfortowe sypialnie, łazienka, przedpokój, praktyczne pomieszczenie techniczne oraz wiatrołap. Dodatkowym atutem jest taras oraz przypisane miejsce parkingowe.
Zestawienie powierzchni użytkowej:
| 2.0. | Wiatrołap | 1,31 m2 |
| 2.1. | Klatka schodowa | 9,62 m2 |
| 2.2. | Holl | 1,80 m2 |
| 2.3. | Pom. techniczne | 3,94 m2 |
| 2.4. | Salon + kuchnia | 35,79 m2 |
| 2.5. | Łazienka | 5,31 m2 |
| 2.6. | Pokój | 9,70 m2 |
| 2.7. | Pokój | 14,32 m2 |
| 2.8. | Korytarz | 6,76 m2 |
| Razem: | 83,72 m2 |
Cena apartamentu:
680 000 zł brutto
Do apartamentu w cenie przysługuje 1 miejsce parkingowe.
Każde kolejne: 25 000 zł brutto.
Opis apartamentu
Apartament D nr 17A - Nowoczesny apartament z ogródkiem
Apartament D nr 17A to trzypokojowe mieszkanie o powierzchni użytkowej wynoszącej 59,18 m², zlokalizowane na parterze apartamentowca w cichej i zielonej części Tarnowskich Gór – Reptach.
W skład apartamentu wchodzą: jasny salon połączony z jadalnią i aneksem kuchennym, dwie komfortowe sypialnie, łazienka, przedpokój oraz wiatrołap. Dodatkowym atutem jest prywatny ogródek, do którego prowadzi wyjście bezpośrednio z salonu, oraz przypisane miejsce parkingowe.
Zestawienie powierzchni użytkowej:
| 1.1. | Wiatrołap | 5,02 m2 |
| 1.2. | Pokój | 9,62 m2 |
| 1.3. | WC | 2,34 m2 |
| 1.4. | Korytarz | 2,40 m2 |
| 1.5. | Salon + kuchnia | 22,51 m2 |
| 1.6. | Pokój | 10,70 m2 |
| 1.7. | Łazienka | 6,59 m2 |
| Razem: | 59,18 m2 |
Cena apartamentu:
Rezerwacja
Do apartamentu w cenie przysługuje 1 miejsce parkingowe.
Każde kolejne: 25 000 zł brutto.
Opis apartamentu
Apartament D nr 17B - Nowoczesny apartament na piętrze z tarasem
Apartament D nr 17B to trzypokojowe mieszkanie o powierzchni użytkowej wynoszącej 83,72 m², zlokalizowane na parterze i piętrze apartamentowca w cichej i zielonej części Tarnowskich Gór – Reptach.
W skład apartamentu wchodzą: jasny salon połączony z jadalnią i aneksem kuchennym, dwie komfortowe sypialnie, łazienka, przedpokój, praktyczne pomieszczenie techniczne oraz wiatrołap. Dodatkowym atutem jest taras oraz przypisane miejsce parkingowe.
Zestawienie powierzchni użytkowej:
| 2.0. | Wiatrołap | 1,31 m2 |
| 2.1. | Klatka schodowa | 9,62 m2 |
| 2.2. | Holl | 1,80 m2 |
| 2.3. | Pom. techniczne | 3,94 m2 |
| 2.4. | Salon + kuchnia | 35,79 m2 |
| 2.5. | Łazienka | 5,31 m2 |
| 2.6. | Pokój | 9,70 m2 |
| 2.7. | Pokój | 14,32 m2 |
| 2.8. | Korytarz | 6,76 m2 |
| Razem: | 83,72 m2 |
Cena apartamentu:
690 000 zł brutto
Do apartamentu w cenie przysługuje 1 miejsce parkingowe.
Każde kolejne: 25 000 zł brutto.
Opis apartamentu
Apartament D nr 19A - Nowoczesny apartament z ogródkiem
Apartament D nr 19A to trzypokojowe mieszkanie o powierzchni użytkowej wynoszącej 59,18 m², zlokalizowane na parterze apartamentowca w cichej i zielonej części Tarnowskich Gór – Reptach.
W skład apartamentu wchodzą: jasny salon połączony z jadalnią i aneksem kuchennym, dwie komfortowe sypialnie, łazienka, przedpokój oraz wiatrołap. Dodatkowym atutem jest prywatny ogródek, do którego prowadzi wyjście bezpośrednio z salonu, oraz przypisane miejsce parkingowe.
Zestawienie powierzchni użytkowej:
| 1.1. | Wiatrołap | 5,02 m2 |
| 1.2. | Pokój | 9,62 m2 |
| 1.3. | WC | 2,34 m2 |
| 1.4. | Korytarz | 2,40 m2 |
| 1.5. | Salon + kuchnia | 22,51 m2 |
| 1.6. | Pokój | 10,70 m2 |
| 1.7. | Łazienka | 6,59 m2 |
| Razem: | 59,18 m2 |
Cena apartamentu:
510 000 zł brutto
Do apartamentu w cenie przysługuje 1 miejsce parkingowe.
Każde kolejne: 25 000 zł brutto.
Opis apartamentu
Apartament D nr 19B - Nowoczesny apartament na piętrze z tarasem
Apartament D nr 19B to trzypokojowe mieszkanie o powierzchni użytkowej wynoszącej 83,72 m², zlokalizowane na parterze i piętrze apartamentowca w cichej i zielonej części Tarnowskich Gór – Reptach.
W skład apartamentu wchodzą: jasny salon połączony z jadalnią i aneksem kuchennym, dwie komfortowe sypialnie, łazienka, przedpokój, praktyczne pomieszczenie techniczne oraz wiatrołap. Dodatkowym atutem jest taras oraz przypisane miejsce parkingowe.
Zestawienie powierzchni użytkowej:
| 2.0. | Wiatrołap | 1,31 m2 |
| 2.1. | Klatka schodowa | 9,62 m2 |
| 2.2. | Holl | 1,80 m2 |
| 2.3. | Pom. techniczne | 3,94 m2 |
| 2.4. | Salon + kuchnia | 35,79 m2 |
| 2.5. | Łazienka | 5,31 m2 |
| 2.6. | Pokój | 9,70 m2 |
| 2.7. | Pokój | 14,32 m2 |
| 2.8. | Korytarz | 6,76 m2 |
| Razem: | 83,72 m2 |
Cena apartamentu:
680 000 zł brutto
Do apartamentu w cenie przysługuje 1 miejsce parkingowe.
Każde kolejne: 25 000 zł brutto.
Opis apartamentu
Apartament D nr 21A - Nowoczesny apartament z ogródkiem
Apartament D nr 21A to trzypokojowe mieszkanie o powierzchni użytkowej wynoszącej 59,18 m², zlokalizowane na parterze apartamentowca w cichej i zielonej części Tarnowskich Gór – Reptach.
W skład apartamentu wchodzą: jasny salon połączony z jadalnią i aneksem kuchennym, dwie komfortowe sypialnie, łazienka, przedpokój oraz wiatrołap. Dodatkowym atutem jest prywatny ogródek, do którego prowadzi wyjście bezpośrednio z salonu, oraz przypisane miejsce parkingowe.
Zestawienie powierzchni użytkowej:
| 1.1. | Wiatrołap | 5,02 m2 |
| 1.2. | Pokój | 9,62 m2 |
| 1.3. | WC | 2,34 m2 |
| 1.4. | Korytarz | 2,40 m2 |
| 1.5. | Salon + kuchnia | 22,51 m2 |
| 1.6. | Pokój | 10,70 m2 |
| 1.7. | Łazienka | 6,59 m2 |
| Razem: | 59,18 m2 |
Cena apartamentu:
540 000 zł brutto
Do apartamentu w cenie przysługuje 1 miejsce parkingowe.
Każde kolejne: 25 000 zł brutto.
Opis apartamentu
Apartament D nr 21B - Nowoczesny apartament na piętrze z tarasem
Apartament D nr 21B to trzypokojowe mieszkanie o powierzchni użytkowej wynoszącej 83,72 m², zlokalizowane na parterze i piętrze apartamentowca w cichej i zielonej części Tarnowskich Gór – Reptach.
W skład apartamentu wchodzą: jasny salon połączony z jadalnią i aneksem kuchennym, dwie komfortowe sypialnie, łazienka, przedpokój, praktyczne pomieszczenie techniczne oraz wiatrołap. Dodatkowym atutem jest taras oraz przypisane miejsce parkingowe.
Zestawienie powierzchni użytkowej:
| 2.0. | Wiatrołap | 1,31 m2 |
| 2.1. | Klatka schodowa | 9,62 m2 |
| 2.2. | Holl | 1,80 m2 |
| 2.3. | Pom. techniczne | 3,94 m2 |
| 2.4. | Salon + kuchnia | 35,79 m2 |
| 2.5. | Łazienka | 5,31 m2 |
| 2.6. | Pokój | 9,70 m2 |
| 2.7. | Pokój | 14,32 m2 |
| 2.8. | Korytarz | 6,76 m2 |
| Razem: | 83,72 m2 |
Cena apartamentu:
700 000 zł brutto
Do apartamentu w cenie przysługuje 1 miejsce parkingowe.
Każde kolejne: 25 000 zł brutto.
Opis apartamentu
Apartament E nr 12A - Nowoczesny apartament z ogródkiem
Apartament E nr 12A to trzypokojowe mieszkanie o powierzchni użytkowej wynoszącej 59,18 m², zlokalizowane na parterze apartamentowca w cichej i zielonej części Tarnowskich Gór – Reptach.
W skład apartamentu wchodzą: jasny salon połączony z jadalnią i aneksem kuchennym, dwie komfortowe sypialnie, łazienka, przedpokój oraz wiatrołap. Dodatkowym atutem jest prywatny ogródek, do którego prowadzi wyjście bezpośrednio z salonu, oraz przypisane miejsce parkingowe.
Zestawienie powierzchni użytkowej:
| 1.1. | Wiatrołap | 5,02 m2 |
| 1.2. | Pokój | 9,62 m2 |
| 1.3. | WC | 2,34 m2 |
| 1.4. | Korytarz | 2,40 m2 |
| 1.5. | Salon + kuchnia | 22,51 m2 |
| 1.6. | Pokój | 10,70 m2 |
| 1.7. | Łazienka | 6,59 m2 |
| Razem: | 59,18 m2 |
Cena apartamentu:
490 000 zł brutto
Do apartamentu w cenie przysługuje 1 miejsce parkingowe.
Każde kolejne: 25 000 zł brutto.
Opis apartamentu
Apartament E nr 12B - Nowoczesny apartament na piętrze z tarasem
Apartament E nr 12B to trzypokojowe mieszkanie o powierzchni użytkowej wynoszącej 83,72 m², zlokalizowane na parterze i piętrze apartamentowca w cichej i zielonej części Tarnowskich Gór – Reptach.
W skład apartamentu wchodzą: jasny salon połączony z jadalnią i aneksem kuchennym, dwie komfortowe sypialnie, łazienka, przedpokój, praktyczne pomieszczenie techniczne oraz wiatrołap. Dodatkowym atutem jest taras oraz przypisane miejsce parkingowe.
Zestawienie powierzchni użytkowej:
| 2.0. | Wiatrołap | 1,31 m2 |
| 2.1. | Klatka schodowa | 4,79 m2 |
| 2.2. | Holl | 1,80 m2 |
| 2.3. | Pom. techniczne | 3,94 m2 |
| 2.4. | Salon + kuchnia | 35,79 m2 |
| 2.5. | Łazienka | 5,31 m2 |
| 2.6. | Pokój | 9,70 m2 |
| 2.7. | Pokój | 14,32 m2 |
| 2.8. | Korytarz | 6,76 m2 |
| Razem: | 83,72 m2 |
Cena apartamentu:
680 000 zł brutto
Do apartamentu w cenie przysługuje 1 miejsce parkingowe.
Każde kolejne: 25 000 zł brutto.
Opis apartamentu
Apartament E nr 14A - Nowoczesny apartament z ogródkiem
Apartament E nr 14A to trzypokojowe mieszkanie o powierzchni użytkowej wynoszącej 59,18 m², zlokalizowane na parterze apartamentowca w cichej i zielonej części Tarnowskich Gór – Reptach.
W skład apartamentu wchodzą: jasny salon połączony z jadalnią i aneksem kuchennym, dwie komfortowe sypialnie, łazienka, przedpokój oraz wiatrołap. Dodatkowym atutem jest prywatny ogródek, do którego prowadzi wyjście bezpośrednio z salonu, oraz przypisane miejsce parkingowe.
Zestawienie powierzchni użytkowej:
| 1.1. | Wiatrołap | 5,02 m2 |
| 1.2. | Pokój | 9,62 m2 |
| 1.3. | WC | 2,34 m2 |
| 1.4. | Korytarz | 2,40 m2 |
| 1.5. | Salon + kuchnia | 22,51 m2 |
| 1.6. | Pokój | 10,70 m2 |
| 1.7. | Łazienka | 6,59 m2 |
| Razem: | 59,18 m2 |
Cena apartamentu:
490 000 zł brutto
Do apartamentu w cenie przysługuje 1 miejsce parkingowe.
Każde kolejne: 25 000 zł brutto.
Opis apartamentu
Apartament E nr 14B - Nowoczesny apartament na piętrze z tarasem
Apartament E nr 14B to trzypokojowe mieszkanie o powierzchni użytkowej wynoszącej 83,72 m², zlokalizowane na parterze i piętrze apartamentowca w cichej i zielonej części Tarnowskich Gór – Reptach.
W skład apartamentu wchodzą: jasny salon połączony z jadalnią i aneksem kuchennym, dwie komfortowe sypialnie, łazienka, przedpokój, praktyczne pomieszczenie techniczne oraz wiatrołap. Dodatkowym atutem jest taras oraz przypisane miejsce parkingowe.
Zestawienie powierzchni użytkowej:
| 2.0. | Wiatrołap | 1,31 m2 |
| 2.1. | Klatka schodowa | 4,79 m2 |
| 2.2. | Holl | 1,80 m2 |
| 2.3. | Pom. techniczne | 3,94 m2 |
| 2.4. | Salon + kuchnia | 35,79 m2 |
| 2.5. | Łazienka | 5,31 m2 |
| 2.6. | Pokój | 9,70 m2 |
| 2.7. | Pokój | 14,32 m2 |
| 2.8. | Korytarz | 6,76 m2 |
| Razem: | 83,72 m2 |
Cena apartamentu:
680 000 zł brutto
Do apartamentu w cenie przysługuje 1 miejsce parkingowe.
Każde kolejne: 25 000 zł brutto.
Opis apartamentu
Apartament E nr 16A - Nowoczesny apartament z ogródkiem
Apartament E nr 16A to trzypokojowe mieszkanie o powierzchni użytkowej wynoszącej 59,18 m², zlokalizowane na parterze apartamentowca w cichej i zielonej części Tarnowskich Gór – Reptach.
W skład apartamentu wchodzą: jasny salon połączony z jadalnią i aneksem kuchennym, dwie komfortowe sypialnie, łazienka, przedpokój oraz wiatrołap. Dodatkowym atutem jest prywatny ogródek, do którego prowadzi wyjście bezpośrednio z salonu, oraz przypisane miejsce parkingowe.
Zestawienie powierzchni użytkowej:
| 1.1. | Wiatrołap | 5,02 m2 |
| 1.2. | Pokój | 9,62 m2 |
| 1.3. | WC | 2,34 m2 |
| 1.4. | Korytarz | 2,40 m2 |
| 1.5. | Salon + kuchnia | 22,51 m2 |
| 1.6. | Pokój | 10,70 m2 |
| 1.7. | Łazienka | 6,59 m2 |
| Razem: | 59,18 m2 |
Cena apartamentu:
520 000 zł brutto
Do apartamentu w cenie przysługuje 1 miejsce parkingowe.
Każde kolejne: 25 000 zł brutto.
Opis apartamentu
Apartament E nr 16B - Nowoczesny apartament na piętrze z tarasem
Apartament E nr 16B to trzypokojowe mieszkanie o powierzchni użytkowej wynoszącej 83,72 m², zlokalizowane na parterze i piętrze apartamentowca w cichej i zielonej części Tarnowskich Gór – Reptach.
W skład apartamentu wchodzą: jasny salon połączony z jadalnią i aneksem kuchennym, dwie komfortowe sypialnie, łazienka, przedpokój, praktyczne pomieszczenie techniczne oraz wiatrołap. Dodatkowym atutem jest taras oraz przypisane miejsce parkingowe.
Zestawienie powierzchni użytkowej:
| 2.0. | Wiatrołap | 1,31 m2 |
| 2.1. | Klatka schodowa | 4,79 m2 |
| 2.2. | Holl | 1,80 m2 |
| 2.3. | Pom. techniczne | 3,94 m2 |
| 2.4. | Salon + kuchnia | 35,79 m2 |
| 2.5. | Łazienka | 5,31 m2 |
| 2.6. | Pokój | 9,70 m2 |
| 2.7. | Pokój | 14,32 m2 |
| 2.8. | Korytarz | 6,76 m2 |
| Razem: | 83,72 m2 |
Cena apartamentu:
690 000 zł brutto
Do apartamentu w cenie przysługuje 1 miejsce parkingowe.
Każde kolejne: 25 000 zł brutto.
Opis apartamentu
Apartament E nr 18A - Nowoczesny apartament z ogródkiem
Apartament E nr 18A to trzypokojowe mieszkanie o powierzchni użytkowej wynoszącej 59,18 m², zlokalizowane na parterze apartamentowca w cichej i zielonej części Tarnowskich Gór – Reptach.
W skład apartamentu wchodzą: jasny salon połączony z jadalnią i aneksem kuchennym, dwie komfortowe sypialnie, łazienka, przedpokój oraz wiatrołap. Dodatkowym atutem jest prywatny ogródek, do którego prowadzi wyjście bezpośrednio z salonu, oraz przypisane miejsce parkingowe.
Zestawienie powierzchni użytkowej:
| 1.1. | Wiatrołap | 5,02 m2 |
| 1.2. | Pokój | 9,62 m2 |
| 1.3. | WC | 2,34 m2 |
| 1.4. | Korytarz | 2,40 m2 |
| 1.5. | Salon + kuchnia | 22,51 m2 |
| 1.6. | Pokój | 10,70 m2 |
| 1.7. | Łazienka | 6,59 m2 |
| Razem: | 59,18 m2 |
Cena apartamentu:
Rezerwacja
Do apartamentu w cenie przysługuje 1 miejsce parkingowe.
Każde kolejne: 25 000 zł brutto.
Opis apartamentu
Apartament E nr 18B - Nowoczesny apartament na piętrze z tarasem
Apartament E nr 18B to trzypokojowe mieszkanie o powierzchni użytkowej wynoszącej 83,72 m², zlokalizowane na parterze i piętrze apartamentowca w cichej i zielonej części Tarnowskich Gór – Reptach.
W skład apartamentu wchodzą: jasny salon połączony z jadalnią i aneksem kuchennym, dwie komfortowe sypialnie, łazienka, przedpokój, praktyczne pomieszczenie techniczne oraz wiatrołap. Dodatkowym atutem jest taras oraz przypisane miejsce parkingowe.
Zestawienie powierzchni użytkowej:
| 2.0. | Wiatrołap | 1,31 m2 |
| 2.1. | Klatka schodowa | 4,79 m2 |
| 2.2. | Holl | 1,80 m2 |
| 2.3. | Pom. techniczne | 3,94 m2 |
| 2.4. | Salon + kuchnia | 35,79 m2 |
| 2.5. | Łazienka | 5,31 m2 |
| 2.6. | Pokój | 9,70 m2 |
| 2.7. | Pokój | 14,32 m2 |
| 2.8. | Korytarz | 6,76 m2 |
| Razem: | 83,72 m2 |
Cena apartamentu:
680 000 zł brutto
Do apartamentu w cenie przysługuje 1 miejsce parkingowe.
Każde kolejne: 25 000 zł brutto.
Opis apartamentu
Apartament E nr 20A - Nowoczesny apartament z ogródkiem
Apartament E nr 20A to trzypokojowe mieszkanie o powierzchni użytkowej wynoszącej 59,18 m², zlokalizowane na parterze apartamentowca w cichej i zielonej części Tarnowskich Gór – Reptach.
W skład apartamentu wchodzą: jasny salon połączony z jadalnią i aneksem kuchennym, dwie komfortowe sypialnie, łazienka, przedpokój oraz wiatrołap. Dodatkowym atutem jest prywatny ogródek, do którego prowadzi wyjście bezpośrednio z salonu, oraz przypisane miejsce parkingowe.
Zestawienie powierzchni użytkowej:
| 1.1. | Wiatrołap | 5,02 m2 |
| 1.2. | Pokój | 9,62 m2 |
| 1.3. | WC | 2,34 m2 |
| 1.4. | Korytarz | 2,40 m2 |
| 1.5. | Salon + kuchnia | 22,51 m2 |
| 1.6. | Pokój | 10,70 m2 |
| 1.7. | Łazienka | 6,59 m2 |
| Razem: | 59,18 m2 |
Cena apartamentu:
510 000 zł brutto
Do apartamentu w cenie przysługuje 1 miejsce parkingowe.
Każde kolejne: 25 000 zł brutto.
Opis apartamentu
Apartament E nr 20B - Nowoczesny apartament na piętrze z tarasem
Apartament E nr 20B to trzypokojowe mieszkanie o powierzchni użytkowej wynoszącej 83,72 m², zlokalizowane na parterze i piętrze apartamentowca w cichej i zielonej części Tarnowskich Gór – Reptach.
W skład apartamentu wchodzą: jasny salon połączony z jadalnią i aneksem kuchennym, dwie komfortowe sypialnie, łazienka, przedpokój, praktyczne pomieszczenie techniczne oraz wiatrołap. Dodatkowym atutem jest taras oraz przypisane miejsce parkingowe.
Zestawienie powierzchni użytkowej:
| 2.0. | Wiatrołap | 1,31 m2 |
| 2.1. | Klatka schodowa | 4,79 m2 |
| 2.2. | Holl | 1,80 m2 |
| 2.3. | Pom. techniczne | 3,94 m2 |
| 2.4. | Salon + kuchnia | 35,79 m2 |
| 2.5. | Łazienka | 5,31 m2 |
| 2.6. | Pokój | 9,70 m2 |
| 2.7. | Pokój | 14,32 m2 |
| 2.8. | Korytarz | 6,76 m2 |
| Razem: | 83,72 m2 |
Cena apartamentu:
680 000 zł brutto
Do apartamentu w cenie przysługuje 1 miejsce parkingowe.
Każde kolejne: 25 000 zł brutto.
Opis apartamentu
Apartament E nr 22A - Nowoczesny apartament z ogródkiem
Apartament E nr 22A to trzypokojowe mieszkanie o powierzchni użytkowej wynoszącej 59,18 m², zlokalizowane na parterze apartamentowca w cichej i zielonej części Tarnowskich Gór – Reptach.
W skład apartamentu wchodzą: jasny salon połączony z jadalnią i aneksem kuchennym, dwie komfortowe sypialnie, łazienka, przedpokój oraz wiatrołap. Dodatkowym atutem jest prywatny ogródek, do którego prowadzi wyjście bezpośrednio z salonu, oraz przypisane miejsce parkingowe.
Zestawienie powierzchni użytkowej:
| 1.1. | Wiatrołap | 5,02 m2 |
| 1.2. | Pokój | 9,62 m2 |
| 1.3. | WC | 2,34 m2 |
| 1.4. | Korytarz | 2,40 m2 |
| 1.5. | Salon + kuchnia | 22,51 m2 |
| 1.6. | Pokój | 10,70 m2 |
| 1.7. | Łazienka | 6,59 m2 |
| Razem: | 59,18 m2 |
Cena apartamentu:
560 000 zł brutto
Do apartamentu w cenie przysługuje 1 miejsce parkingowe.
Każde kolejne: 25 000 zł brutto.
Opis apartamentu
Apartament E nr 22B - Nowoczesny apartament na piętrze z tarasem
Apartament E nr 22B to trzypokojowe mieszkanie o powierzchni użytkowej wynoszącej 83,72 m², zlokalizowane na parterze i piętrze apartamentowca w cichej i zielonej części Tarnowskich Gór – Reptach.
W skład apartamentu wchodzą: jasny salon połączony z jadalnią i aneksem kuchennym, dwie komfortowe sypialnie, łazienka, przedpokój, praktyczne pomieszczenie techniczne oraz wiatrołap. Dodatkowym atutem jest taras oraz przypisane miejsce parkingowe.
Zestawienie powierzchni użytkowej:
| 2.0. | Wiatrołap | 1,31 m2 |
| 2.1. | Klatka schodowa | 4,79 m2 |
| 2.2. | Holl | 1,80 m2 |
| 2.3. | Pom. techniczne | 3,94 m2 |
| 2.4. | Salon + kuchnia | 35,79 m2 |
| 2.5. | Łazienka | 5,31 m2 |
| 2.6. | Pokój | 9,70 m2 |
| 2.7. | Pokój | 14,32 m2 |
| 2.8. | Korytarz | 6,76 m2 |
| Razem: | 83,72 m2 |
Cena apartamentu:
740 000 zł brutto
Do apartamentu w cenie przysługuje 1 miejsce parkingowe.
Każde kolejne: 25 000 zł brutto.















